Кућа Глођајића са диванханом- равна Конаку кнегиње Љубице
21.03.2025 | 10:44
Стилом градње и унутрашњим опремањем, куће фочанске породице Глођајић одсликавају специфичне околности формирања српског грађанског сталежа у Босни и Херцеговини у 19. вијеку- под снажним утицајем исламско-оријенталне културе, истовремено помијешане са долазећим западним струјањима и трговачким везама са Венецијом и Бечом, али уз чување српске самосвојности.
О некадашњем богатству и економској моћи ове породице и данас свједоче њихове двије куће у Ћерезлуку, високо изнад Фоче, изграђене још за вријеме Турака, те једна новија из аустроугарског периода у Горњој чаршији.

Глођајића у Фочи одавно нема, а једна од кућа у којима су живјели, по начину градње и унутрашњим украсима од дрвета представља ремек дјело аутохтоне архитектуре и резбарије, какво се данас ријетко среће.
Напуштена једноспратница високо у брду, под шумарком, оронула је и зарасла у коров, али и даље плијени љепотом. Високи бедеми око куће су добрим дијелом урушени, дрвена капија још стоји, а зубу времена и неодржавања пркоси и необична диванхана- дрвени доксат на спрату куће.

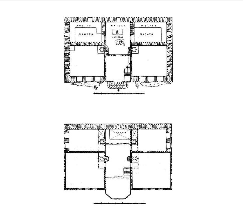
Алија Бејтић 1957. године пише да је „кућа јаких фочанских трговаца Глођаја у врху Ћерезлука сигурно највећа кућа у Фочи уопће“. Он доноси скицу комплекса са двориштем, тлоцрте приземља и спрата и наводи да кућа има шест соба „двије у приземљу и четири на кату, и врло богат декор који прекрива дрвене стропове, сва врата, те врхове ступова чак у облику профилираних капитела“, напомињући да за разлику од муслиманских, кућа Глођајића нема уграђено купатило.
Тлоцрт куће, из књиге Алије Бејтића
„Иначе у тој кући сретамо чак и уздигнуту камерију /доксат- затворени балкон од дрвета/, која је карактерна особина исључиво муслиманских кућа“, пише Бејтић. Камерија се још држи, а и прелијепа резбарија, мада је вријеме учинило своје.

Један од насљедника куће, Драган Шарић отворио нам је некадашње „дворе Глођајића“ и омогућио да направимо фотографије овог умјетничког бисера Фоче.
Диванхана /од турске ријечи диван што значи разговор/, простор је између соба, који је служио за окупљање, разговор, одмор и уживање, нешто што би данас одговарало дневној соби. За степеник-два уздигнута је од осталог кућног простора, а камерија је њен дио истурен од линије кућног зида. Диванхану, просторију која, како тумаче историчари и архитекте, оплемењује човјека и чини га радосним, могли су да приуште само имућнији.
Диванхана Глођајића
И заиста, поглед из диванхане Глођајића продужава живот, као што то воле да кажу планинари када се попну на врх неке планине. Фоча се одатле види као на длану, а угођај у тој просторији употпуњују дрвени лукови и изрезбарени умјетнички украси.
Поглед из диванхане Глођајића
Сва врата на спрату куће су украшена резбаријама на којима преовладава мотив розете. У собе се улази кроз „оградице“ од дрвета са преломљеним луковима у оријентланом стилу, спојеним са плакарима.

Лукови истог облика изведени су и на зидовима изнад прозора, што додатно подстиче осјећај уживања у љепоти стамбеног простора,.
И степениште је украшено са доста дрвених стубића на које се надовезује дрвена ограда са полукружним луковима на улазу у диванхану.

Глођаје су кућу, између два свјетска рата, продале Светозару Шарићу, родом из села Борци код Борачког језера у општини Коњиц. Светозар је са супругом Милосавом, рођеном Милановић, из фочанског села Закмур, имао деветоро дјеце, од којих је троје погинуло у рату.
„Светозар је кућу од Глођаја купио 1937. године. Кућа је споменик под заштитом државе и мој стриц је након овог рата писао Заводу за заштиту споменика да одобре средства да се реновира кућа, али су они рекли да нема средстава“, каже Слободан Шарић, Светозаров унук и додаје да се не сјећа како се звао Глођајић који је продао кућу.

Током Другог свјетског рата, кућа је била напуштена, када је опљачкана, прича Слободан. Тада су однесени скупоцјени персијски ћилими и друге драгоцјености.
Од 2014. године, када је преминула Радојка Шарић, супруга Светозаровог сина Божидара, кућа је пуста.

У соби са необично изрезбареним дрвеним плафоном- шиштетом, стоје и два велика дрвена оквира за иконе, нешто попут кућног иконостаса. Један се још држи на зиду, а други је на патосу прислоњен на зид и оба су без икона. На иконостасима је изрезбарено мноштво крстова са остављеним мањим просторима за иконице.

Архитекта Републичког завода за заштиту културно-историјског и природног насљеђа Милијана Окиљ каже да је кућа Глођајића вјероватно настала у првој половини 19. или при крају 18. вијека.
„За ову архитектуру био је устаљен назив „босанска кућа“, мада је прикладнији термин „старобалканска профана архитектура“, јер је карактеристична за простор балканског полуострва. Осјећали су се стални и многоструки утицаји које су Османлије вршиле на свакодневни живот становништва, па је то оставило снажан печат и на стамбену архитектуру што се примјећује и на кући Глођајића“, каже Окиљ.
Она наводи да је изглед кућа имућнијих породица у градским насељима био доста сличан, а да се као раскошнији примјер издваја кућа Глођајића.

„Оно што је посебна вриједност тог објекта, који је данас у доста девастираном стању, да су у потпуности сачувани сви елементи и екстеријера и унутрашњости куће. Она припада типу симетричних објеката из тог периода“, наводи Окиљ.
Приземље оваквих кућа, наставља она, обично је грађено од камена, а спрат у бондрук систему /врста градње са дрвеним костуром испуњеним ћерпичом или неким другим природним материјалом/.
„Простор диванхане на спрату, што би данас одговарало дневном боравку, је доксатно издвојен и централно постављен, а кров је четвороводни. Те хришћанске и исламске куће из тог периода су на исти начин грађене“, појашњава Окиљ.
Она истиче да је ријеткост да данас на овим просторима постоји потпуно сачуван објекат из тог периода, као што је кућа Глођајића.

„Ту су сачувани аутентични прозорски отвори, аутентична врата, плафонска дрвена облога која у средини има резбарени осмоугаоник, дрвене преграде, нише у зидовима, полихромно обојена врата, аутентични звекири /алке на вратима/, прозори који су са спољне стране квадратни, а у унутрашњости завршени сараценским луком, сачувана је чак и капија и дио ограде дворишта у којем је осим главне куће било још помоћних објеката“, истиче Окиљ.
Може се рећи да је двор Глођаја са баштом и лијепо уређеним двориштем- калдрмисаним облутком из Дрине, био уистину „павиљон у ограђеном врту“, како овај тип кућа назива познати архитекта Неџад Курто.

Управо је карактеристика фочанских кућа, што констатује и Алија Бејтић, уз приказ ситуационог плана двије куће- муслимаснке породице Џонлагић и православне породице Глођајић, да су бјежале од улице и вањског свијета. Биле су увучене дубље унутра, тако да прозори нису гледали на улицу, већ у двориште високим бедемом одвојеним од улице, тежећи већој интими, за разлику од Сарајева, гдје су прозори истурени и наднесени над улицом.

У Фочи се доста пажње придавало зеленилу, које даје хлад и свјежину, истиче Бејтић, па су дворишта и баште фочанских кућа, као мало гдје, красиле густе крошње воћака, бујно цвијеће и повртњаци.
Захваљујући том израженом смислу грађана за зеленилом, Фоча у микроурбанистичком смислу, писао је Бејтић, има карактер вртног града, а у цјелини обиљежје пејсажног града у чему лежи тајна њене љепоте.
Милијана Окиљ истиче да је према величини објекта, унутрашњем уређењу и резбаријама очигледно да су Глођајићи били веома богата породица.

„У богатијим кућама, као што је ова, постојале су посебне собе за мушкарце, посебне за жене, односно женска кућа – харемлук и мушка кућа- селамлук, а и двориште је било подијељено на женско и мушко. Опет понављам нису се пуно разликовале муслиманске и хришћанске куће, јер је архитектура настала под снажним утицајем Османлија“, наводи Окиљ и констатује да су разлике у изгледу кућа више биле имовинског него вјерског карактера.
То потврђује и сараценски- преломљени лук у кући провославне породице Глођајић, који се често повезује само са исламском архитектуром. Преломљени лук је у османску архитектуру, појашњава Окиљ, дошао са сјевера Африке, одакле су га Османлије преузеле од Сарацена.

Још једна особеност куће Глођајића су полихромно обојене резбарије- више боја је примјењивано приликом обраде.
„Ријетко сусрећемо да су сачувани дрвени елементи полихромно обојени. Овдје има елемената да се у потпуности реконструише првобитни изглед. Нажалост, средства за културна добра су скромна, готово се не издваја за објекте у приватном власништву, као што је овај, али би била заиста штета да овај објекат нестане“, упозорава Окиљ.
Изузетно вриједна кућа Глођајића, коју Окиљ пореди са Конаком кнегиње Љубице, могла би се спасти, уколико би је општина откупила.

„Једино ако је општина Фоча заинтересована да се објекат откупи па да се комплетна цјелина уреди, попут „Сврзине куће“ у Сарајеву, овај објекат заиста то заслужује. Или као „Конак кнегиње Љубице“, за Фочу је ово, не само за Фочу, већ за Републике Српску један од ријетко добро сачуваних објеката. Опет понављам, не само да је вањски изглед у потпуности аутентичан, него и унутрашњост објекта“, каже Окиљ, која је професор заштите и ревитализације градитељског насљеђа на Архитектонско-грађевинском факултету у Бањалуци.

У дворишту су се некада налазили још једна мања „кућа преко авлије“, затим објекат за слуге, стаја, качара и бунар, а недалеко од куће је барутана- бетонирана земуница са металним вратима. Према казивањима Грујичића, породице из комшилука, Глођаје су се између осталог бавиле и трговином оружја, па отуда и барутана, али Слободану Шарићу то није познато.
У прилог тој причи могао би да говори и стари дрвени сандук за ручне бомбе- производене тридесетих година прошлог вијека у Државној војној фабрици у Казанлаку у Бугарској, што се види из ознаке на сандуку, који се налази на спрату куће.

Ипак, треба имати у виду и чињеницу да су Шарићи, који су купили кућу од Глођаја, били позната партизанска породица, па би сандук могао бити и њихова заоставштина из рата. Исти случај је и са сликом аустријског цара Фрања Јосифа, која се и данас налази у кући- могуће да је остала још од Глођаја, али не треба искључити могућност да су је донијели Шарићи.

Уз ову, у непосредној близини налази се још једна кућа Глођајића из „турског вакта“, која је и данас добро очувана. Један од садашњих власника ове куће Његош Крунић каже да је посједовао документ у којем се наводи да је кућа изграђена крајем 18. вијека, док је у рјешењу комисије за заштиту споменика уписано да је из 19. вијека.
И ову кућу на спрат, димензија 16 са девет метара, од Глођајића су прије Другог свјетског рата, са комплетним имањем, купили Шарићи, да би касније промијенила неколико власника, преноси Крунић причу коју је чуо од Светозаровог сина, учитеља Милана Шарића.

У савезничком бомбардовању Фоче 1944. године, кућа је погођена и проваљен јој је кров, па је служила за одлагање сијена, да би је касније Шарићи продали, па су је нови власници поправили за становање.
Посљедњи пут је реновирана 1980-их година и данас је у добром стању. Уколико је тачан податак да је изграђена крајем 18. вијека, онда би то могло да значи да су Глођајићи у Фочу дошли нешто прије 1804, коју као годину њиховог доласка наводи историчар Андрија Лубурић, или да су ову кућу купили, а потом саградили и кућу са дрвеном камеријом.

И у овој кући, лукови у зиду изнад прозора рађени су у оријенталном стилу, док су од изворне резбарије очувана само дрвена вратанца на маленој остави уграђеној у зиду- долафу, који је могао да служио за одлагање посуђа или за чување драгоцјености, попут накита и важних докумената.

У неким фочанским породицама за ову кућу постоји прича да је ту живјела послуга Глођајића, коју су у Другом свјетском рату усташе убиле трагајући за благом ове богате породице.
„Моја баба Вајта Грујичић је гледала како слушкињу Јевру убијају усташе и чекићом јој избијају златне зубе“, прича Милан Грујичић, чија се стара породична кућа налази недалеко од имања Глођајића.
Куће Глођајића, које су највјероватније саградила браћа Радован и Андрија, дио су „Амбијенталне цјелине Ћерезлук“ и заштићене су као споменици културе, односно на привременој су листи националних споменика Босне и Херцеговине и Републике Српске.

Уз ова два споменика народног градитељства, заштићеној амбијенталној цјелини припадају и кућа Ђорђа и Ника Хаџивуковића, кућа Јосифа Кочовића, свештеничка кућа /свештеномученика Момчила Гргуревића/ и црквена школа.
Објекат на привременој листи националних споменика има исти статус заштите као и да је проглашен за споменик културе, појашњава Милијана Окиљ и додаје да ће се старе куће из фочанске Српске вароши највјеровантије прогласити културним добром Републике Српске.
КУЋА ВЛАДА ГЛОЂАЈИЋА У ГОРЊОЈ ЧАРШИЈИ
Нешто новија кућа Глођајића, из „ћесарског“ периода, налази се у Горњој чаршији, на почетку Грановског сокака. На том мјесту, како пише Алија Бејтић, некада се налазио хан Муја Гранова, у чијем приземљу је била поткивачка радња, а који је Радованов унук Владо Глођајић откупио нешто прије Првог свјетског рата и подигао једноспратницу украшену фасадом крактеристичном за тај период.

Након Другог свјетског рата у тој кући радила је основна школа, а данас су то приватни станови.
Дућан и кућа Глођајића у Пријекој чаршији, према сјећању породице Грујичић, која је живјела у Ћерезлуку у близини Глођајића, налазио се на мјесту данашње зграде Црвеног крста или у њеној непосредној близини.
Глођајићи су у Фочи живјели тек коју деценију више од једног вијека, али је њихова заоставштина немјерљива. То се прије свега односи на велики допринос изградњи Цркве Светог Николе, првог православног храма у граду на Дрини и Ћехотини након турског рушења средњовјековних фочанских богомоља, а затим и на предан рад у културном уздизању и просвјећивању народа.
Богатство које су стицали као вјешти трговци, а са материјалним богатством и утицај који су имали међу турским пашама и беговима, послужили су као средства за остваривање вишег циља.

Са Глођајићима и другим знаментим породицама из тог времена, повећавањем броја Срба и њиховог богатства, Српска Варош све се више шири и приближава шехеру Фочи, а управо је махала Ћерезлук била спона између православног и муслиманског дијела града. Богатији Срби почињу да купују беговске воћњаке у Ћерезлуку /предграђе названо по обиљу воћа, од турске ријечи через, што значи суво воће/, изнад Цареве махале, и да ту граде куће.

Глођајићи су међу првим Србима који су у врху Ћерезлука подигли куће чији оријентални стил са мноштвом скупоцјених унутрашњих украса свједочи да је ова породица била у рангу са турским беговима, па је могла себи да приушти тако луксузан дом.

Глођајића више нема, а уколико се нешто не предузме ускоро би могла нестати и њихова јединствена и од културно-историјској значаја изузетно вриједна кућа са диванханом.
По узору на „Конак кнегиње Љубице“, уз мало добре воље и труда надлежних кућа би, да ли откупом од власника или можда неким видом јавно-приватног партнерства, лако могла бити претворена у репрезентативну музејску поставку, какве се не би постидјели ни много већи градски центри.
Крај
Новинар: Игор Јанковић
Преузимање дијелова текста или текста у цјелини је дозвољено, али уз обавезно навођење извора и уз постављање линка на www.radiofoca.com